茨木の家 House in Ibaraki
作品一覧-
リビングからダイニングキッチンを望む。
-
農業用水池の対岸から家を望む。
-
池の脇から家を望む。方形の頂部に風突があるのが特徴。
-
道路側北面外観。
-
リビングからダイニングキッチンを見る。
-
リビング上部の架構を見上げる。材はすべての和歌山産の材を用いている。
-
-
カウンタートップはステンレスパーマネントヘアライン仕上げ。
-
リビングから池を見る。対岸の住宅が見えないよう、ヨシズを下げている
-
リビングの開口。柱の間隔は1820mm。
-
ダイニングからリビングを見る。リビングの奥に和室が続く。
-
和室は茶室としても使えるようになっている。
-
ダイニングから中央のサロンの入口を見る。
-
サロンを見る。頂部の風突からのみ採光している。
-
風突の一面が開いて、風が抜けるようになっている。
-
サロンから池方向を望む。
-
図書室を見る。正面は和室。左手がサロン。
-
玄関
-
玄関ホールからサロン入口を見る。
-
洗面所
-
キッチンの背後にある食品庫と勝手口。
-
開口部廻り。外側から網戸、ペアガラス戸、断熱ロールスクリーン。 床の穴は床下の冷気の給気口。
-
平面図
-
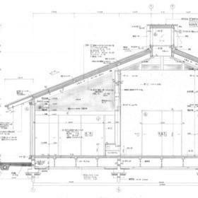
矩計図
敷地は大阪市北部、茨木市近郊の住宅地にあり、かつての農業用水池に面しているのが特徴だった。建主である初老の夫婦の生活を考え平屋とし、家の中心には所蔵する沢山の書籍や絵本を近所の子供達に公開したり、趣味の写真を展示したりするためのサロンを設けている。そのサロンへの採光のため方形屋根の頂部にトップライト用のボックスを設け、夏はそこから家全体の熱気が抜けるように断面を計画した。
Data
- 所在地
- 大阪府
- 構造規模
- 木造 平屋建て
- 延床面積
- 119.25m2 ・・・
- 竣工
- 2013年
- 施工
- コアー建築工房
- 掲載誌
-
住宅特集2015年3月号 (新建築社)
建築知識 2016年2月号(エクスナレッジ)
- 撮影者