川(ゲストハウス) Sen
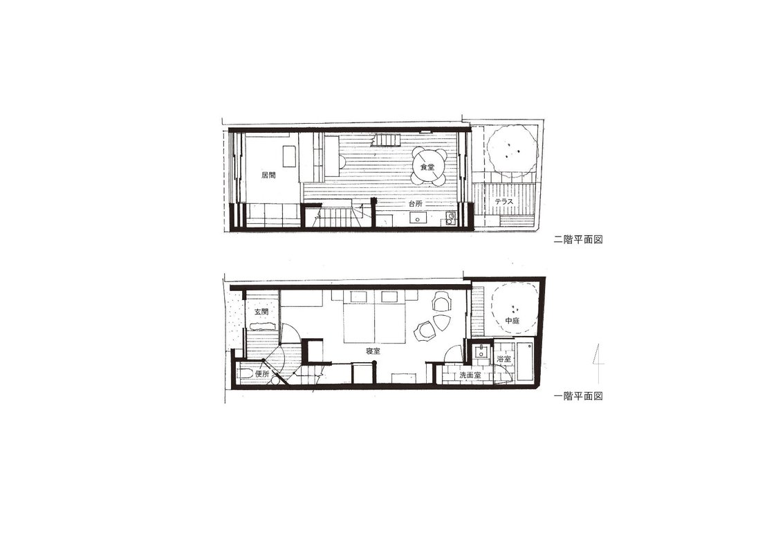
作品一覧2016年に完成した丹のとなりに建つ、同じオーナーによるゲストハウス。戦後まもなく建てられた既存家屋の改修。敷地の一番奥にある坪庭を囲むように2層分の塀を建てることでプライバシーを確保し、一階をベッドルームに、2階をリビング・ダイニングに、屋根裏部屋を予備室にしている。長期滞在も可能なようにキッチンを設けるなど、住宅と同じ機能をもったプランとなっている。
Data
- 所在地
- 京都府
- 構造規模
- 木造2階建て
- 延床面積
- 73.48m2 ・・・・
- 竣工
- 2017年
- 施工
- 上原工務店
- 掲載誌
- 撮影者
- 横内敏人建築設計事務所
