武蔵野の家 House in Musashino
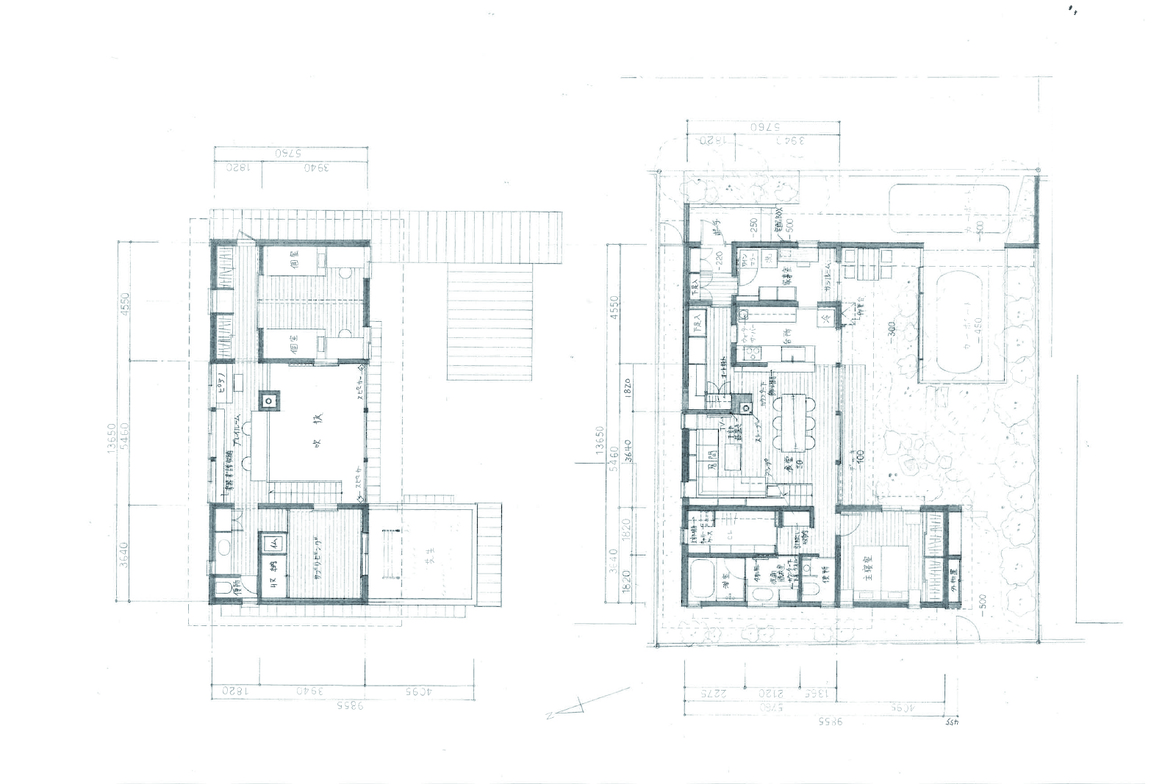
作品一覧東京近郊の住宅地に建つ4人家族のための家。南側に建つ隣家の影響で日当たりに難があったため、庭に面するダイニングの上部を吹抜けとし、上部の窓から採光する計画とした。将来夫婦が年老いた時のことを考え、主寝室は1階の水廻りに近い位置に設け、2階は子供室と趣味室とした。ソファスペースはダイニングのニッチのような形で天井を低くし、ダイニングとのコーナーにビルトインストーブを設け、空間のかなめとした。
Data
- 所在地
- 東京都
- 構造規模
- 木造2階建て
- 延床面積
- 171.09m2 ・・・
- 竣工
- 2017年10月
- 施工
- 堀井工務店
- 掲載誌
- 撮影者
- 小川重雄
