京田辺の家 House in Kyoutanabe, 2011
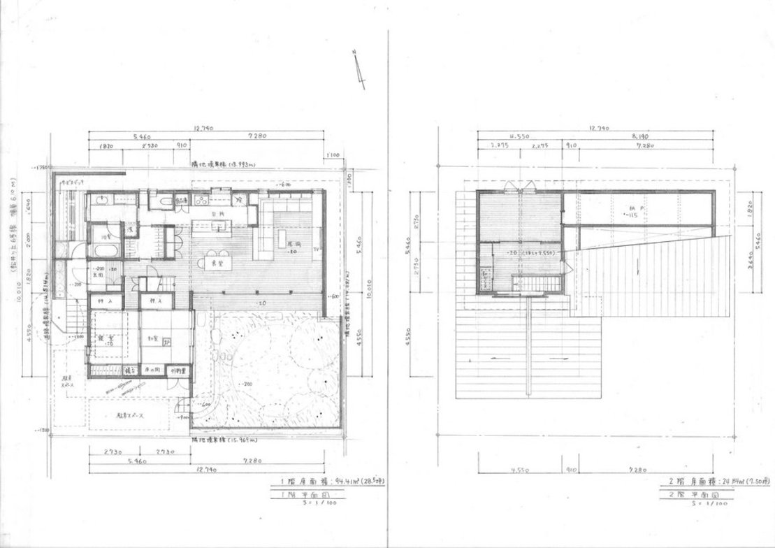
作品一覧敷地は40年ほど前に開発された新興住宅地の中にある。周辺は住宅が建て込んでいるため、隣地からの視線を遮るように中庭を囲むL字型のプランとした。中庭の周囲にも高い塀を設け、居間・食堂・和室をその庭に面して配することにより、プライバシーを確保しながら、光と風を取り入れられるようにした。外観は、周囲の住宅にとけ込むようなひかえ目なものとし、室内に入ってからの開放的な印象と対比させている。
Data
- 所在地
- 京都府
- 構造規模
- 木造地上2階
- 延床面積
- 123.46m2 ・・
- 竣工
- 2011年
- 施工
- サクジ工務店
- 掲載誌
- 撮影者
- 横内敏人建築設計事務所